January in Review

After a well deserved break over the holiday period the team hit the ground running in January and attended some spectacular homes. Periods of extreme heat across Victoria created challenging conditions and our hearts go out to those affected by fires that devastated parts of regional Victoria that we service.

January is typically one of our quieter months as many clients also take the opportunity to enjoy a holiday, and vendors spend some time preparing their homes ready for launch. The team is set for a big February with the bookings already coming through in increased numbers to start the month.

Take a look at some of our latest work below including a very grand property of the month! We also take a closer look at floor plans and how they remain an integral part of every campaign. At NCPro Visuals we create accurate floor plans that compliment our professional photography and videography. We can match any agency style or format required, get in touch today for more information and make sure to add a floor plan to your next campaign!

PROPERTY OF THE MONTH

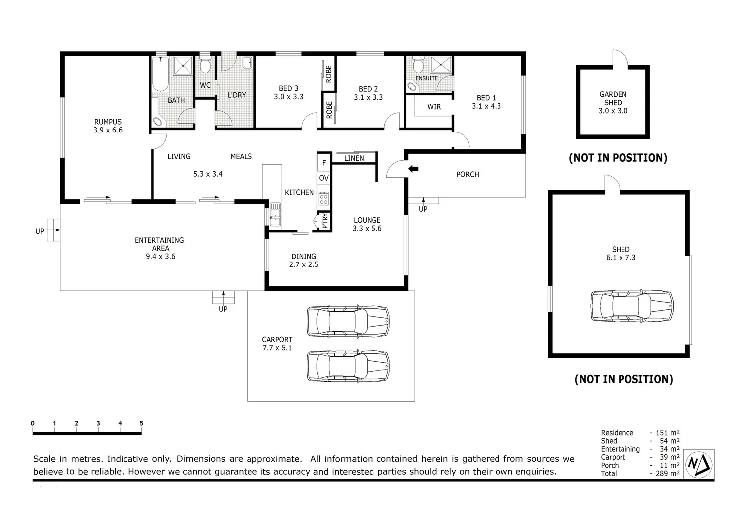
10 Akins Rise, Golden Square VIC
Sacha Dale
The Agency

 

Floor Plans Still Matter:
What Buyers Look For

In a world full of video tours, 3D walkthroughs and AI generated imagery, it’s easy to assume the classic floor plan has lost its value. But for serious buyers, floor plans remain one of the most important pieces of information when evaluating a property — often even more than photos.

Why? Because while photos trigger emotion, floor plans deliver clarity.

Floor Plans Help Buyers Visualise Living

A floor plan lets buyers imagine how they’ll live in the home:

  • Can the kids' bedrooms be close to ours? (or further away!)

  • Is there space for a home office?

  • Does the living room flow to the outdoor area?

  • Where does the morning light enter?

These practical questions matter — and clear layout visuals answer them instantly.

Buyers Want Detail, Not Guesswork

Today’s property seekers are informed. They expect:

  • Measurements

  • Scale accuracy

  • Clear room labels

  • Orientation (N/S/E/W)

A floor plan that includes these elements builds confidence and speeds up decision-making.

Proven to Increase Buyer Engagement

Listings with floor plans generate higher engagement and longer viewing times. The clearer the information, the stronger the buyer connection — and the smoother the sales journey.

In competitive markets, small advantages matter. A floor plan may feel traditional, but its ability to convert browsers into serious buyers is very modern.

Final Word

Tech is evolving, but the fundamentals haven’t changed: buyers want to truly understand a property before they step inside.

At NCPro Visuals, we create accurate, clean and visually clear floor plans that complement professional photography, videography, and virtual tours — giving your listing the complete buyer experience.

Because floor plans don’t just show a home — they help buyers imagine their life inside it.

 

book. capture. deliver.

Capturing real estate in Australia since 2011.

Previous
Previous

February in Review

Next
Next

Year in Review 2025